Milano 40
3170 €
3415 €
3415 €
Cena (ar PVN):
3170 €
3415 €
3415 €
Tehniskā informācija
Sienu biezums (mm):
40mm
Iekšējā platība (m²):
11.53
Jumta forma:
Četrslīpju
Mājas forma:
Piecstūra
Telpu skaits:
Divas
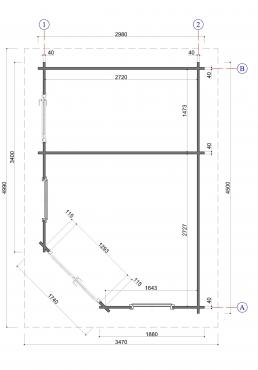
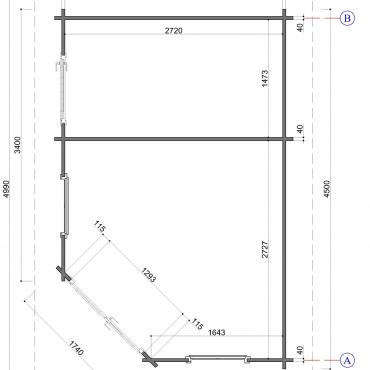
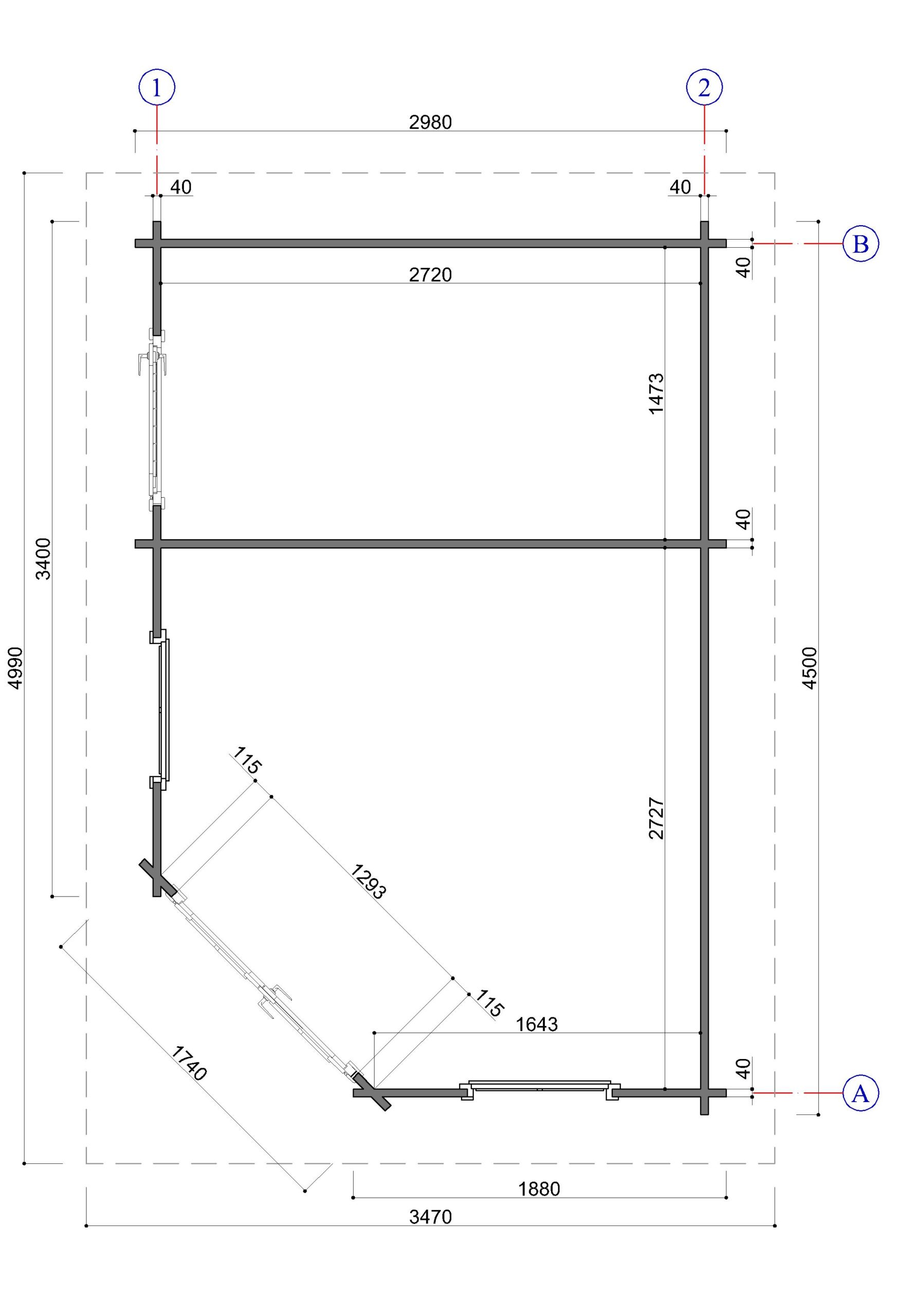
Iekšējais izmērs (m):
4.24 x 2.72
Ārējais izmērs (m):
4.32 x 2.80
Apbūves platība (m²):
12.10
Jumta platība (m²):
17.50
Jumta pārkare priekšā (m):
0.25
Zemākās sienas augstums (m):
2.05
Kores augstums (m):
2.70
Logu skaits (gab.):
2
Loga izmērs (m):
0.73 x 1.43
Ārdurvju izmērs (m):
1.22 x 1.87
Iekšdurvju izmērs (m):
0.81 x 1.87
Komplektācijā iekļauts
- Jumts no 19 mm dēļiem, vēja dēļi;
- Grīda no 19 mm dēļiem, grīdlīstes;
- Stikla logi koka rāmī;
- Stiklotas līmēta koka durvis;
- Impregnētas pamata brusas;
- Durvis ar zemu metāla slieksni;
- Durvis ar cilindra atslēgu un rokturi;
- Logs atverams divās pozīcijās;
- Montāžas instrukcija.
Papildus faili
Papildus komplektācija
- Biezāka grīda, 28mm spundēdi dēļi +135 Eur
- Stiklapaketes logos un durvīs +145 Eur
Papildus iespējas
Montāža, piegāde
Par papildus samaksu nodrošinām mūsu produkcijas piegādi, montāžu, kā arī citu papildus darbu veikšanu saskaņā ar vienošanos (pamati, komunikāciju tīkli, siltināšana, krāsošana u.c.)
Individuāli projekti
Bez sarežģījumiem izgatavojam arī individuālu projektu mājas saskaņā ar Jūsu skicēm, rasējumiem, idejām!
Saskaņošana būvvaldē
Par nelielu papildus samaksu nodrošinām mūsu māju projektu vienkāršoto saskaņošanu būvvaldēs 1.grupas ēkām, kā arī veicam pilna cikla projektēšanas darbus 2.grupas ēkām
Saņemt informāciju
Nosūtot šo ziņu, jums tiks sagatavots piedāvājums par produktu: Milano 40