Ambra
43900 €
Cena (ar PVN): 43900 €
Apraksts
- Mūsu piedāvāto līmbrusu augstums ir 260mm (līmētas ne tikai biezumā, bet arī augstumā), kas nodrošina monolītāku mājas konstrukciju ar māzāk savienojuma vietām;
- Mājas projektā iespējams veikt jebkādas izmaiņas. Labprāt izstrādājam un ražojam individuālus projektus;
- Iespējamas arī biezākas sienas - 135mm, 180mm, 220mm.
Komplektācijā iekļauts
- Grīdas konstrukcija – augstspiedienā impregnēts cokolšķautnis, grīdas lāgas. Spundēti 28mm biezi grīdas dēļi, grīdlīstes. Grīda sagatavota siltinājuma materiāla iestrādei;
- Starpstāvu siju un otrā stāva grīdas lāgu konstrukcija, pirmā stāva griestu apdares dēļi, līstes (ja mājai paredzēti divi stāvi);
- Ārsienas un starpsienas no profilētām, frēzētām līmbrusām ar krusta stūra vai pilsētas stūra savienojumiem. Iespējamas starpsienas no koka karkasa materiāla;
- Jumta konstrukcija – sijas, kopturi, spāres, latas, vēja dēļi, jumta vagondēļi, griestu vagondēļi. Jumts sagatavots siltinājuma materiāla iestrādei un jumta seguma uzklāšanai;
- Koka trepes uz otro stāvu saskaņā ar projekta specifikāciju;
- Līmēta koka logi, vitrīnas ar stikla paketēm. Dekoratīvās koka aplodas no abām pusēm;
- Līmēta koka ārduvis ar stikla paketēm vai bez stiklojuma. Dekoratīvās koka aplodas no abām pusēm;
- Līmēta koka iekšdurvis ar vai bez stiklojuma. Dekoratīvās koka aplodas no abām pusēm;
- Pēc projekta specifikācijas nepieciešamie vertikālie balsti un balsta mehānismi;
- Redzamo spāru galu, kolonnu, margu, aplodu un citu detaļu dekoratīva frēzēšana (dizains pēc vienošanās);
- Elektroinstalācijas kanālu, rozešu un slēdžu vietu rūpnieciska frēzēšana;
- Ražošanas – montāžas projekts, mājas tehniskā dokumentācija, rasējumi saskaņošanai būvvaldē (apbūves laukums līdz 60m²), vai projekta izstrādei (apbūves laukums virs 60m²).
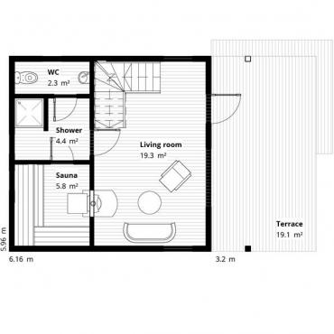
Tehniskā informācija
Sienu biezums (mm):
90mm
Iekšējā platība (m²):
59
Stāvu skaits:
2
Jumta forma:
Četrslīpju
Telpu skaits:
Vairāk kā trīs
Ārējais izmērs (m):
9.36 x 5.96
Apbūves platība (m²):
37.90
Terases platība (m²):
19.10
Pirmā stāva iekšējā platība (m2):
31.80
Otrā stāva iekšējā platība (m2):
28.80
Papildus komplektācija
- Par papildus samaksu piedāvājam mājas logu un durvju rūpniecisku krāsošanu, lakošanu;
- Par papildus samaksu piedāvājam pamatu izbūvi, mājas montāžu, siltinājuma materiāla iestrādi, jumta seguma uzklāšanu, mājas krāsošanu, komunikāciju tīklu izbūvi kā arī citu darbu veikšanu pēc vienošanās;
- Iespējama ārsienu siltināšana no ārpuses, vai iekšpuses (koka karkass pildīts ar akmensvati, vai ekovati, apdare ar frēzbaļķi imitējošiem dēļiem, vai cita veida materiāliem).
Papildus iespējas
Montāža, piegāde
Par papildus samaksu nodrošinām mūsu produkcijas piegādi, montāžu, kā arī citu papildus darbu veikšanu saskaņā ar vienošanos (pamati, komunikāciju tīkli, siltināšana, krāsošana u.c.)
Individuāli projekti
Bez sarežģījumiem izgatavojam arī individuālu projektu mājas saskaņā ar Jūsu skicēm, rasējumiem, idejām!
Saskaņošana būvvaldē
Par nelielu papildus samaksu nodrošinām mūsu māju projektu vienkāršoto saskaņošanu būvvaldēs 1.grupas ēkām, kā arī veicam pilna cikla projektēšanas darbus 2.grupas ēkām
Saņemt informāciju
Nosūtot šo ziņu, jums tiks sagatavots piedāvājums par produktu: Ambra